MEETING & EVENT SPACES
Where natural inspiration meets modern productivity
MEETING ROOM CAPACITY
| Seating Arrangement | |||||||||||||||
| Theatre | Classroom | U-Shape | Banquet | Boardroom | Hollow | Cocktail / Reception | |||||||||
| Majestic 1 & 2 | 60 | 40 | 24 | 50 | 24 | 24 | 60 | ||||||||
| Majestic 3 | 30 | 24 | 18 | 30 | 16 | 16 | 40 | ||||||||
| Majestic 1, 2 & 3 | 90 | 64 | 42 | 80 | 40 | 42 | 100 | ||||||||
| Majestic 4 | 30 | 16 | 15 | - | 15 | 12 | 30 | ||||||||
| Level | Name of Venue | Capacities | Dimensions (WxL) |
Area | Ceiling Height (m) |
||||||
| Metric (m) | |||||||||||
| Reception | Boardroom | Theatre | Banquet | U-Shape | Classroom | W | L | Metric (m) | |||
| Level 1 |
Meeting Room 1 |
100 | 30 | 90 | 80 | 29 | 56 | 31.8 | 21 | 90 | 7 |
Banquet set-up is calculated based on round tables with 10 guests per table
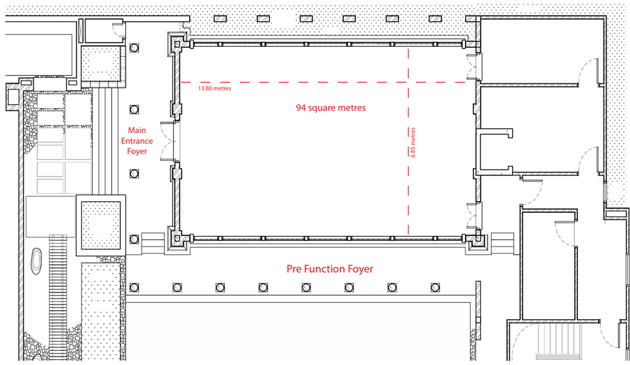
MEETING ROOM LAYOUT
To discuss your requirements, please contact our dedicated events team at events@ytlhotels.com or complete the enquiry form below.